• preventivi
  • ristrutturazione
  • progetto
  • cadcasa
  • caldaia
  • clima
  • forum
  • consulenza
  • prezzi
  • computo
sp
2026-01-02 16:38:57

Planimetria irrisolvibile?


Guadagnare con le case
login
24 Dicembre 2025 ore 17:19 3
Buongiorno a tutti, sono davanti ad un problema a quanto pare irrisolvibile.
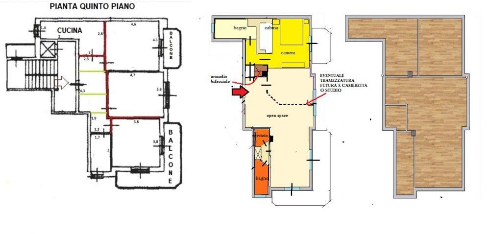
Ho acquisito un immobile, quinto paino in un condominio, e vorrei portarlo dalla planimetria originale (in foto quella vecchia con le misure) alla planimetria nella seconda foto, creando un ampissimo living e spostando le due camere affiancate nella parte superiore!
Problema, la camera in alto a sx nel nuovo progetto perde i rapporti aeroilluminanti in quanto la finestrella in fondo alla strettoia è 0,5mq di superficie apribile.
La casa dovrà poi essere rivenduta, perchè fosse per me non ci sarebbe problema, la si potrebbe accatastare (la camera problematica) magari come ripostiglio, o non inserire il tramezzo di separazione dal living e denunciare il tutto come un grandissimo open-space con 1 camera e 2 bagni.
C'è qualche soluzione geniale che risolverebbe il problema?
  • clint!
    0
    Ricerca discussioni per utente
    Domenica 28 Dicembre 2025, alle ore 21:47
    Salve,premetto che per una giusta disamina si dovrebbero avere più riferimenti di cui ne ricordo alcuni: tipo orientamento cardinale, posizione delle eventuali una o più fecali, magari occultate da qualche cavedio, cucina chiusa o aperta... A prima vista io avrei un'idea possibile con il superamento immediato del problema aeroilluminante per ogni ambiente, tranne che per un secondo bagno ceco. Provo postare quanto avrei pensato e fatemi sapere che ve ne pare.


  • previatoantonio
    0
    Ricerca discussioni per utente Clint!
    Martedì 30 Dicembre 2025, alle ore 16:35 - ultima modifica: Martedì 30 Dicembre 2025, all or 17:00
    Salve,premetto che per una giusta disamina si dovrebbero avere più riferimenti di cui ne ricordo alcuni: tipo orientamento cardinale, posizione delle eventuali una o più fecali, magari occultate da qualche cavedio, cucina chiusa o aperta... A prima vista io avrei un'idea possibile con il superamento immediato del problema aeroilluminante per ogni ambiente, tranne che per un secondo bagno ceco. Provo postare quanto avrei pensato e fatemi sapere che ve ne pare.
    Salve a tutti!
    Si dovrebbe approfondire il problema, considerando quanto sia poco pratico il fruire dei servizi, come il dovere attraversare la porta d'ingresso per l'utilizzo del bagno o dell'eventuale secondo bagno, con il disagio di percorrere il seppur breve tragitto.
    A questo punto proporrei di pensare a un bagno nella camera o adiacente, con l'aiuto di uno scarico forzato qualora non vi fosse la possibilità di raggiungere una eventuale fecale nelle vicinanze.


  • jovis
    0
    Ricerca discussioni per utente
    Venerdì 2 Gennaio 2026, alle ore 16:38 - ultima modifica: Venerdì 2 Gennaio 2026, all or 16:41
    Ciao a tutti e Buon 2026! che ne pensate di questa mia soluzione? con cabina e bagno di pertinenza alla camera matrimoniale e l'eventuale creazione di un tramezzo in futuro per ricavare una cameretta o uno studio in alternativa all'open space dove andrà realizzata anche a piacere una cucina a giorno?


Discussioni Correlate nel Forum di Lavorincasa
Img maddalena.
Buona sera a tutti,scrivo perchè sono davvero in difficoltà. Ho un appartamento allo stato grezzo da finire e spero qualcuno appassionato possa aiutarmi nella...
maddalena. 02 Febbraio 2026 ore 16:05 6
Img luca36
Ciao, sto facendo una bozza della planimetria da portare all'architetto. Ho cercato di fare una planimetria rettangolare per ridurre i costi ma non riesco ad eliminare i due...
luca36 23 Gennaio 2026 ore 11:06 12
Img lucav22
Salve, volevo avere qualche suggerimento su come poter ridistribuire i vani.Quello che vorrei aggiungere è una scala tra magazzino e primo piano pero questo comporta una...
lucav22 19 Novembre 2025 ore 14:33 10
Img mandrake
Buonasera signori!Abbiamo una casa di campagna nell'alto Salento fatta con muri perimetrali quasi tutti con doppio tufo da 20 cm più intercapedine da 10 cm (totale spessore...
mandrake 25 Luglio 2025 ore 09:06 5
Img vanessa.
Buonasera a tutti,Volevo un vostro aiuto riguardo dei lavori di riqualificazione del mio appartamento che sono intenzionata a fare.Allego le immagini dello stato di fatto e di...
vanessa. 17 Marzo 2025 ore 16:17 16
Notizie che trattano Planimetria irrisolvibile? che potrebbero interessarti


Planimetria valida solo se allegata, sottoscritta e mezionata, all'atto di vendita

Comprare casa - In tema di contratto di compravendita di un'unità immobiliare, la planimetria catastale può essere considerata valido riferimento solamente se allegata e sottoscritta.

5 idee di spazi funzionali per il tuo appartamento rettangolare

Soluzioni progettuali - Sai come progettare la planimetria della tua casa rettangolare? In questo articolo cinque idee funzionali da adattare alle tue esigenze e al tuo stile di vita.

Visura catastale online: i casi in cui la richiesta è gratuita

Catasto - La visura catastale, il documento d'identità che riporta gli estremi di un immobile può essere scaricata online e, in alcuni casi, anche senza pagare alcun tributo

Ristrutturazione unita' abitativa di 45 mq

Progettazione - Una piccola unita' abitativa per due persone viene redistribuita negli spazi interni.

Come adattare una cucina piccola a un nuovo ambiente

Cucine moderne - Idee e spunti per l'ambiente cucina da un progetto di interior design. Adattare dei mobili cucina più piccoli a uno spazio maggiore, con originalità e con stile

Regolarità catastali e urbanistiche prima dell'acquisto di un alloggio

Normative - Prima di procedere alla stipula di un atto di compravendita di un alloggio, la legge impone che vengano osservate alcune condizioni ben definite: vediamo quali.

App per progettare casa: quali sono le migliori gratuite

Soluzioni progettuali - Alcune applicazioni consentono di progettare l'arredo della propria stanza online gratuitamente, facilitando la scelta agli acquisti, con idee esportabili 3D.

Scrivere annuncio per vendita o affitto

Affittare casa - Una chiara e completa descrizione dell'unità immobiliare che intendiamo mettere in vendita o in affitto può aumentare il numero di contatti di possibili clienti.

Impianto antincendio in casa: guida ai dispositivi essenziali e normative 2025

Impianti di sicurezza - Guida pratica per rendere la casa più sicura: estintori, rilevatori di fumo, compartimentazioni e obblighi.
348.846 UTENTI
SERVIZI GRATUITI PER GLI UTENTI
SEI INVECE UN'AZIENDA? REGISTRATI QUI