• preventivi
  • ristrutturazione
  • progetto
  • cadcasa
  • caldaia
  • clima
  • forum
  • consulenza
  • prezzi
  • computo
sp
2026-02-02 16:05:45

Consigli planimetria


Buona sera a tutti,
scrivo perchè sono davvero in difficoltà.
Ho un appartamento allo stato grezzo da finire e spero qualcuno appassionato possa aiutarmi nella ripartizione degli spazi, perchè non riesco a trovare una soluzione che mi convinca.
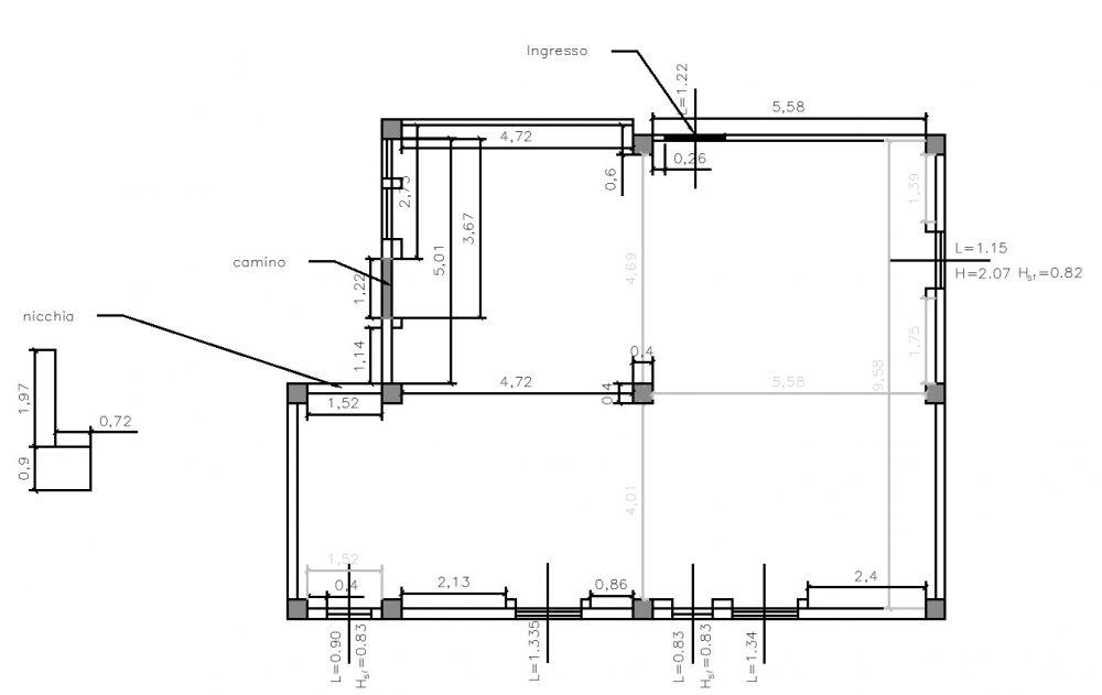
Allego la planimetria, specificando che ho come punti fissi il camino e l'ingresso (zona giorno).
I lati sinistro e sopra sono confinanti con la scala, quindi senza finestre (a parte due piccole finestre che affacciano nella scala in alto a sx ( che penso di voler mantenere almeno come punto luce), la parete in basso invece presenta un balcone per tutta la lunghezza.
vorrei ricavare un open space cucina-soggiorno, una camera matrimoniale con annesso bagnetto e cabina armadio, un camera da letto, un bagno abbastanza spazioso e un piccolo ripostiglio.
Potere aiutarmi?
  • clint!
    0
    Ricerca discussioni per utente
    Venerdì 9 Gennaio 2026, alle ore 14:43 - ultima modifica: Venerdì 9 Gennaio 2026, all or 14:49
    Molto interessante la planimetria al grezzo vista la conformazione e il pilastro centrale che potrebbe fungere più o meno da divisione tra open space e zona notte. Si potrebbe approfondire qualche idea con l'aiuto di una o due foto anche se al grezzo, per carpire meglio quanta luce entra per la distribuzione degli ambienti visto poi la presenza di un'ampia balconata che suppongo sia magari orientata a Sud?. Grazie

  • jovis
    0
    Ricerca discussioni per utente
    Venerdì 9 Gennaio 2026, alle ore 16:48 - ultima modifica: Venerdì 9 Gennaio 2026, all or 16:53
    Visto che l'appartamento è al grezzo si può sapere il punto più ideale per la fecale? o non sussistono vincoli per collegamento alla condotta principale.

  • maddalena.
    0
    Ricerca discussioni per utente
    Sabato 10 Gennaio 2026, alle ore 10:02
    Purtroppo non ho foto, ma posso dirvi che il balcone si trova ad ovest.Per quanto riguarda la condotta di scarico non ne ho idea, ma posso dirvi che al di sotto ci sono garage di mia proprietà già finiti e con bagno situato nell'angolo a ridosso del camino. La parete sopra e a sinistra sospra (dovè il camino) confina con le scale, la parete a destra affaccia su giardino di mia proprietà e le altre su strade pubbliche. Aggiungo che la tamponatura è in blocchi di cls 40*20.Io avevo pensato di realizzare zona giorno nella parte superiore collegandola al balcone da un corridoio che attraverso uno delle due portafinestre esistenti. Da questo corridoio si potrebbe accedere a quasi tutte le stanze. Però vorrei qualche idea ottimale

  • jovis
    0
    Ricerca discussioni per utente Maddalena.
    Lunedì 2 Febbraio 2026, alle ore 13:22
    Purtroppo non ho foto, ma posso dirvi che il balcone si trova ad ovest.Per quanto riguarda la condotta di scarico non ne ho idea, ma posso dirvi che al di sotto ci sono garage di mia proprietà già finiti e con bagno situato nell'angolo a ridosso del camino. La parete sopra e a sinistra sospra (dovè il camino) confina con le scale, la parete a destra affaccia su giardino di mia proprietà e le altre su strade pubbliche. Aggiungo che la tamponatura è in blocchi di cls 40*20.Io avevo pensato di realizzare zona giorno nella parte superiore collegandola al balcone da un corridoio che attraverso uno delle due portafinestre esistenti. Da questo corridoio si potrebbe accedere a quasi tutte le stanze. Però vorrei qualche idea ottimale
    Ciao potresti realizzare una cucina con isola che renda l'effetto di separazione dell'open space tra zona camino, cucina salotto creando un corridoio-camminamento virtuale verso la zona notte servizi.

  • jovis
    1
    Ricerca discussioni per utente
    Lunedì 2 Febbraio 2026, alle ore 15:26
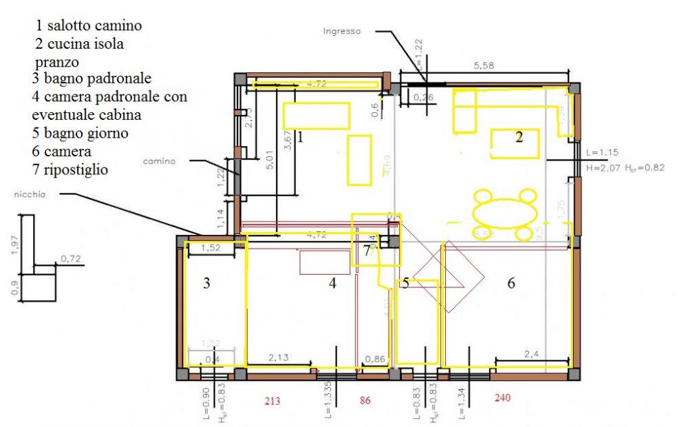
    Ciao! ho provato a schematizzare una possibile soluzione tra tante possibili, tracciata con il colore giallo


  • maddalena.
    0
    Ricerca discussioni per utente Jovis
    Lunedì 2 Febbraio 2026, alle ore 16:05
    Ciao! ho provato a schematizzare una possibile soluzione tra tante possibili, tracciata con il colore giallo
    Jovis, mi piace molto la tua idea, in particolare l'idea di realizzare il soggiorno vicino al camino e il tavolo da pranzo di fronte la cucina. L'unica pecca è avere un wc principale piccolino (in contronto a quello privato) e soprattutto non avere accesso al balcone se non dalle camere da letto. Allego ciò a cui avevo pensato. Non essendo esperta in merito ho mille dubbi


Discussioni Correlate nel Forum di Lavorincasa
Img paoloan
Salve. Le agevolazioni fiscali per ristrutturazioni edilizie, compreso l'ecobonus, sono state prorogate anche per il 2026, al 50% per le unità immobiliari di...
paoloan 19 Febbraio 2026 ore 16:57 3
Img chiara ronci
Buongiorno, sono in fase di progettazione per il mio soggiorno angolo cottura per una casa che acquisterò a breve. Avrei bisogno di un consiglio su come progettare e...
chiara ronci 19 Febbraio 2026 ore 14:18 8
Img red83
Ciao a tutti. Abbiamo acquistato questa casa su 2 livelli e vorremmo ristrutturare il primo piano per renderlo tutto zona giorno, avendo al piano superiore 3 camere e bagno...
red83 16 Febbraio 2026 ore 12:54 7
Img daniela.
Salve,a breve inizierò i lavori di ristrutturazione nell'immobile di mia proprietà (prima casa). Per quanto riguarda l'Ecobonus 2026, mio marito, convivente ma non...
daniela. 10 Febbraio 2026 ore 12:56 2
Img godeas78
Ciao a tutti,devo procedere con i lavori di ristrutturazione nel mio appartamento sito in un condominio.All'interno di una stanza c'è una porta finestra a due ante. Vorrei...
godeas78 09 Febbraio 2026 ore 12:22 2
Notizie che trattano Consigli planimetria che potrebbero interessarti


No al bonus ristrutturazione se l'edificio è di nuova costruzione

Detrazioni e agevolazioni fiscali - La Corte di Cassazione, con una recente ordinanza chiarisce quali sono i requisiti per poter beneficiare del bonus ristrutturazioni. Vediamo i punti salienti.

Progettazione e ristrutturazione personalizzate

Soluzioni progettuali - Quando si progetta un intervento di ristrutturazione è molto importante tenere in considerazione le esigenze e le aspettative della propria committenza.

Ristrutturare casa chiavi in mano, come funziona?

Restauro edile - La ristrutturazione casa chiavi in mano libera il cliente da ogni preoccupazione, eliminando lo stress di dover seguire l'impresa rivolgendosi a un unico referente

Cerchi un'impresa edile a Roma che si occupi di ristrutturazioni edilizie?

Soluzioni progettuali - Se avete bisogno di ristrutturare casa a Roma e dintorni potere , azienda leader nel settore delle ristrutturazioni condominiali o di appartamenti.

Ristrutturazione di ruderi e case diroccate

Leggi e Normative Tecniche - L'intervento di riqualificazione del rudere di un vecchio fabbricato può essere vantaggioso, ma è bene considerare anche altri aspetti.

Chiedi una consulenza tecnica: il primo contatto telefonico è gratuito

Soluzioni progettuali - La consulenza conoscitiva con il cliente è propedeutica a indirizzare l'utente verso una soluzione veloce o per formulare una consulenza a pagamento non impegnativa

Ristrutturare senza problemi

Ristrutturare Casa - Posare il nuovo pavimento senza danneggiare la porta.

Il Bonus ristrutturazione può essere trasferito una sola volta all'erede

Detrazioni e agevolazioni fiscali - L'Agenzia delle Entrate ha spiegato a chi sono trasferite le quote residue della detrazione fiscale del Bonus ristrutturazione in caso di decesso del beneficiario

Colonne portanti e tramezzi: cosa si può demolire e cosa no

Restauro edile - Vuoi demolire una parete interna? Scopri la differenza tra tramezzi e colonne portanti, gli interventi consentiti e quando serve il parere tecnico.
348.891 UTENTI
SERVIZI GRATUITI PER GLI UTENTI
SEI INVECE UN'AZIENDA? REGISTRATI QUI