• preventivi
  • ristrutturazione
  • progetto
  • cadcasa
  • caldaia
  • clima
  • forum
  • consulenza
  • prezzi
  • computo
sp
2026-01-23 11:06:10

Bozza planimetria


Ciao, sto facendo una bozza della planimetria da portare all'architetto.
Ho cercato di fare una planimetria rettangolare per ridurre i costi ma non riesco ad eliminare i due spigoli in più.
Voglio cucina e bagni adiacenti per ridurre i tempi di arrivo dell'acqua calda e risparmiare sugli impianti. Inoltre non voglio il salone quadrato, ma lo preferisco rettangolare.
In tutto sono 108,7 m2 commerciali.
Potrei allargare i bagni da 3,2 a 3,6 e stringere la cucina da 3,8 a 3,6 per eliminare lo spigolo a destra salendo a 110 commerciali.
Non mi vengono altre idee.
Consigli?
Modificato il 12 Gennaio 2026 ore 12:27
  • jovis
    0
    Ricerca discussioni per utente
    Lunedì 12 Gennaio 2026, alle ore 15:45 - ultima modifica: Lunedì 12 Gennaio 2026, all or 15:46
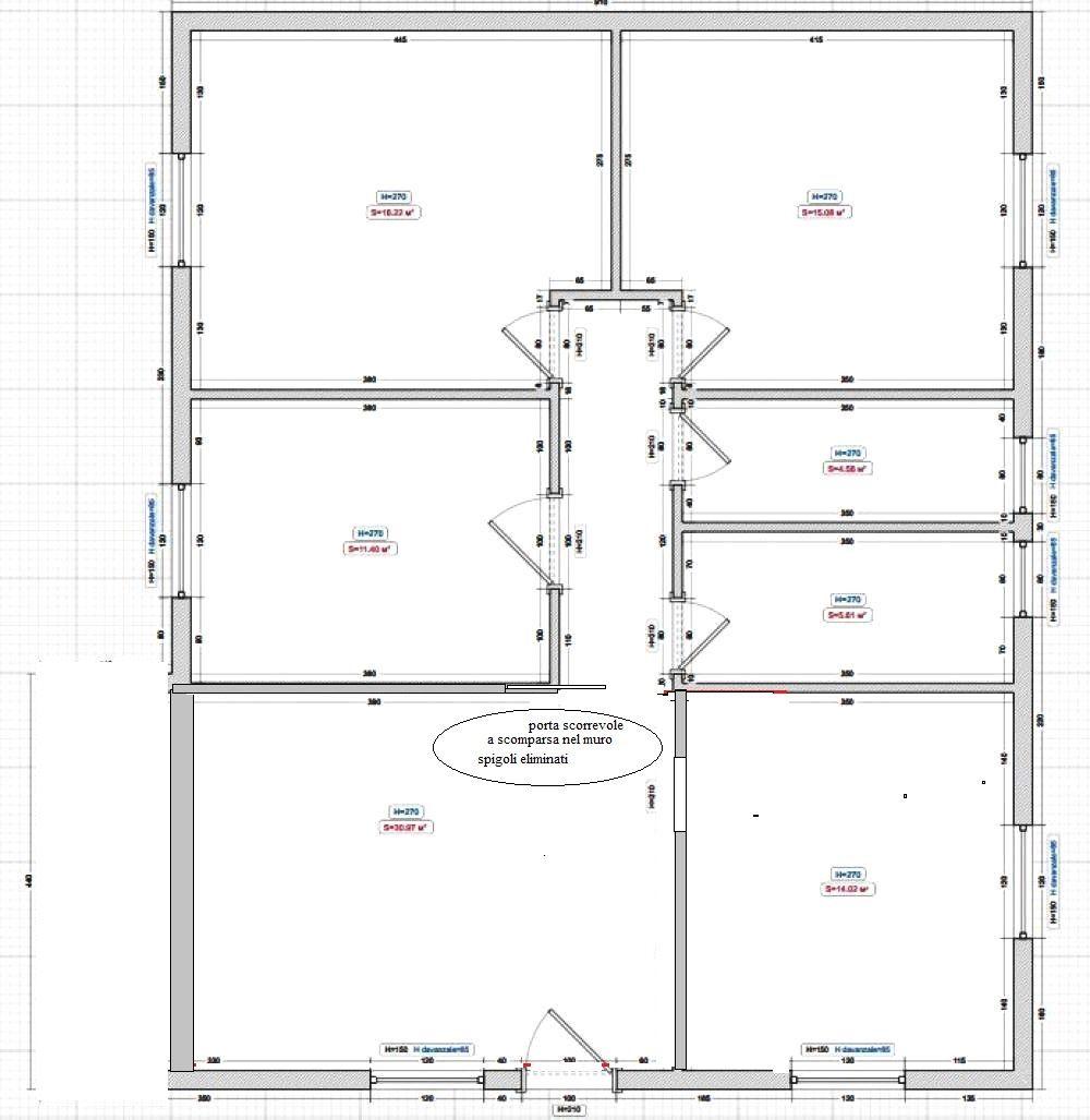
    Ecco una soluzione veloce che elimina gli spigoli e lascia bagni e cucina tutti in linea per facilitare l'impiantistica.


  • clint!
    0
    Ricerca discussioni per utente Jovis
    Martedì 13 Gennaio 2026, alle ore 13:42 - ultima modifica: Martedì 13 Gennaio 2026, all or 13:54
    Ecco una soluzione veloce che elimina gli spigoli e lascia bagni e cucina tutti in linea per facilitare l'impiantistica.
    Condivido la brillante idea di jovis, nel eliminare i due spigoli delle camere. Penso che in questo caso vi siano due opzioni per le "due porte d'ingresso" da realizzare una a battente curve come hai rappresentato, oppure la seconda dal costo più contenuto e commerciale standard, creando ovviamente una apertura in diagonale.


  • previatoantonio
    0
    Ricerca discussioni per utente
    Martedì 13 Gennaio 2026, alle ore 14:04 - ultima modifica: Martedì 13 Gennaio 2026, all or 14:42
    Salve interessante variante alla problematica posta da Luca, con gli accessi dal disimpegno curvi ( dove volendo si possono recuperare cm anche dal bagno attistante) si ottiene un effetto soft e gradevole sia come fruibilità e sia come colpo d'occhio. Io aggiungerei nello spazio del disimpegno sulla porzione di parete rimanente tra le due porte, una bella lampada da parete a doppia luce.


  • luca36
    0
    Ricerca discussioni per utente
    Venerdì 16 Gennaio 2026, alle ore 12:11
    No scusate per spigoli intendevo le sporgenze di cucina e salone sui muri esterni. Tutti mi hanno detto che una pianta rettangolare riduce i costi, ma in realtà non mi è molto chiaro di quanto.Anziché bagni 3,2 e cucina 3,8 potrei allineare tutto a 3,5 ed avere il muro a destra lineare.

  • clint!
    0
    Ricerca discussioni per utente Luca36
    Venerdì 16 Gennaio 2026, alle ore 13:41 - ultima modifica: Venerdì 16 Gennaio 2026, all or 13:45
    No scusate per spigoli intendevo le sporgenze di cucina e salone sui muri esterni. Tutti mi hanno detto che una pianta rettangolare riduce i costi, ma in realtà non mi è molto chiaro di quanto.Anziché bagni 3,2 e cucina 3,8 potrei allineare tutto a 3,5 ed avere il muro a destra lineare.
    Si in effetti sarebbe un bel risparmio, si tratterebbe di portare il livello strutturale lineare realizzando: soletta di calpestio più ridotta, solaio di copertura più ridotto, ovviamente meno costi per strutture come pilastri, armature, travi, laterizi, massetto cementizio, soletta per la pavimentazione, riduzione delle metrature per l'applicazione intonaci, per eventuali coibentazioni tipo cappotto o altre tipologie, riduzione dei tempi di lavoro, come cantieristica e costruzione e ovviamente posa in opera di pavimentazioni-rivestimenti, pitturazioni.

  • luca36
    0
    Ricerca discussioni per utente
    Venerdì 16 Gennaio 2026, alle ore 16:44 - ultima modifica: Venerdì 16 Gennaio 2026, all or 16:46
    Ok, quindi questa soluzione sarebbe preferibile a livello di costi. La metratura è la stessa, perché ho allargato bagni e camera e stretto la cucina. Per come ho pensato gli spazi la pianta completamente rettangolare non riesco a farla.


  • clint!
    0
    Ricerca discussioni per utente Luca36
    Lunedì 19 Gennaio 2026, alle ore 12:58 - ultima modifica: Lunedì 19 Gennaio 2026, all or 14:10
    Ok, quindi questa soluzione sarebbe preferibile a livello di costi. La metratura è la stessa, perché ho allargato bagni e camera e stretto la cucina. Per come ho pensato gli spazi la pianta completamente rettangolare non riesco a farla.
    A questo punto la pianta globale è rettangolare e non vi sono spigoli nel salone, risultando a sua volta rettangolare. Una porta a scomparsa nel muro separa la zona notte servizi dalla zona giorno. Se hai difficoltà nella ricerca di porte a scomparsa nel muro, ti posso citare alcune aziende produttrici come Eclisse, Bertolotto, Garofoli oppure nella grande distribuzione come Iperceramica.


  • luca36
    0
    Ricerca discussioni per utente
    Lunedì 19 Gennaio 2026, alle ore 13:49
    Così però il salone scenderebbe da 6,5x4 a 5x4. Io ho bisogno di più spazio in salone.Quando parlo di spigoli non mi riferisco ai tramezzi interni, ma solo alla conformazione del perimetro esterno. Ma alla fine la sporgenza del salone se non ho capito male comporterebbe un pilastro in più, di quanto può far salire i costi?

  • clint!
    0
    Ricerca discussioni per utente Luca36
    Lunedì 19 Gennaio 2026, alle ore 14:19 - ultima modifica: Lunedì 19 Gennaio 2026, all or 14:23
    Così però il salone scenderebbe da 6,5x4 a 5x4. Io ho bisogno di più spazio in salone.Quando parlo di spigoli non mi riferisco ai tramezzi interni, ma solo alla conformazione del perimetro esterno. Ma alla fine la sporgenza del salone se non ho capito male comporterebbe un pilastro in più, di quanto può far salire i costi?
    In questo caso specifico ho visto che in questo portale che è attivo il servizio preventivi gratuito preventivi online, una volta inviata la documentazione, verrai contattato senza impegno dal tecnico autorizzato a valutare la tua richiesta.

  • luca36
    0
    Ricerca discussioni per utente
    Lunedì 19 Gennaio 2026, alle ore 14:28
    Ma figurati per ora non voglio far fare un preventivo dettagliato, è solo una bozza. Mi sto solo documentando per partire da una cosa più realistica possibile e limitare i costi dove posso per poi investirli su elementi che mi interessano. Per questo ho messo cucina e bagni allineati ed ho cercato di semplificare la pianta. L'obiettivo è tenendomi su finiture medio/basse riuscire a stare sui 1400€ a m2. Sono nel lazio.

  • clint!
    1
    Ricerca discussioni per utente Luca36
    Martedì 20 Gennaio 2026, alle ore 16:50 - ultima modifica: Venerdì 30 Gennaio 2026, all or 17:48
    Ma figurati per ora non voglio far fare un preventivo dettagliato, è solo una bozza. Mi sto solo documentando per partire da una cosa più realistica possibile e limitare i costi dove posso per poi investirli su elementi che mi interessano. Per questo ho messo cucina e bagni allineati ed ho cercato di semplificare la pianta. L'obiettivo è tenendomi su finiture medio/basse riuscire a stare sui 1400€ a m2. Sono nel lazio.
    Ok!  penso che facendo molta attenzione ai vari preventivi senza allargarti a interventi extra dovresti farcela.

  • luca36
    0
    Ricerca discussioni per utente
    Venerdì 23 Gennaio 2026, alle ore 11:06
    Ok grazie

Discussioni Correlate nel Forum di Lavorincasa
Img red83
Ciao a tutti. Abbiamo acquistato questa casa su 2 livelli e vorremmo ristrutturare il primo piano per renderlo tutto zona giorno, avendo al piano superiore 3 camere e bagno...
red83 13 Febbraio 2026 ore 13:37 6
Img chiara ronci
Buongiorno, sono in fase di progettazione per il mio soggiorno angolo cottura per una casa che acquisterò a breve. Avrei bisogno di un consiglio su come progettare e...
chiara ronci 09 Febbraio 2026 ore 12:16 6
Img maddalena.
Buona sera a tutti,scrivo perchè sono davvero in difficoltà. Ho un appartamento allo stato grezzo da finire e spero qualcuno appassionato possa aiutarmi nella...
maddalena. 02 Febbraio 2026 ore 16:05 6
Img guadagnare con le case
Buongiorno a tutti, sono davanti ad un problema a quanto pare irrisolvibile.Ho acquisito un immobile, quinto paino in un condominio, e vorrei portarlo dalla planimetria originale...
guadagnare con le case 02 Gennaio 2026 ore 16:38 3
Img lucav22
Salve, volevo avere qualche suggerimento su come poter ridistribuire i vani.Quello che vorrei aggiungere è una scala tra magazzino e primo piano pero questo comporta una...
lucav22 19 Novembre 2025 ore 14:33 10
Notizie che trattano Bozza planimetria che potrebbero interessarti


Planimetria valida solo se allegata, sottoscritta e mezionata, all'atto di vendita

Comprare casa - In tema di contratto di compravendita di un'unità immobiliare, la planimetria catastale può essere considerata valido riferimento solamente se allegata e sottoscritta.

Visura catastale online: i casi in cui la richiesta è gratuita

Catasto - La visura catastale, il documento d'identità che riporta gli estremi di un immobile può essere scaricata online e, in alcuni casi, anche senza pagare alcun tributo

5 idee di spazi funzionali per il tuo appartamento rettangolare

Soluzioni progettuali - Sai come progettare la planimetria della tua casa rettangolare? In questo articolo cinque idee funzionali da adattare alle tue esigenze e al tuo stile di vita.

Regolarità catastali e urbanistiche prima dell'acquisto di un alloggio

Normative - Prima di procedere alla stipula di un atto di compravendita di un alloggio, la legge impone che vengano osservate alcune condizioni ben definite: vediamo quali.

Ristrutturazione unita' abitativa di 45 mq

Progettazione - Una piccola unita' abitativa per due persone viene redistribuita negli spazi interni.

App per progettare casa: quali sono le migliori gratuite

Soluzioni progettuali - Alcune applicazioni consentono di progettare l'arredo della propria stanza online gratuitamente, facilitando la scelta agli acquisti, con idee esportabili 3D.

Quali sono i livelli di progettazione edilizia?

Architettura - Per la progettazione di un'opera pubblica sono previsti tre livelli: il progetto di fattibilità tecnica ed economica, il progetto definitivo e il progetto esecutivo

Come adattare una cucina piccola a un nuovo ambiente

Cucine moderne - Idee e spunti per l'ambiente cucina da un progetto di interior design. Adattare dei mobili cucina più piccoli a uno spazio maggiore, con originalità e con stile

Home design fai da te grazie a tante app e programmi

Architettura - Progettare o arredare casa da soli oggi è possibile, anche per chi non è un esperto, grazie a free software disponibili gratuitamente sul web, facili e intuitivi
348.863 UTENTI
SERVIZI GRATUITI PER GLI UTENTI
SEI INVECE UN'AZIENDA? REGISTRATI QUI